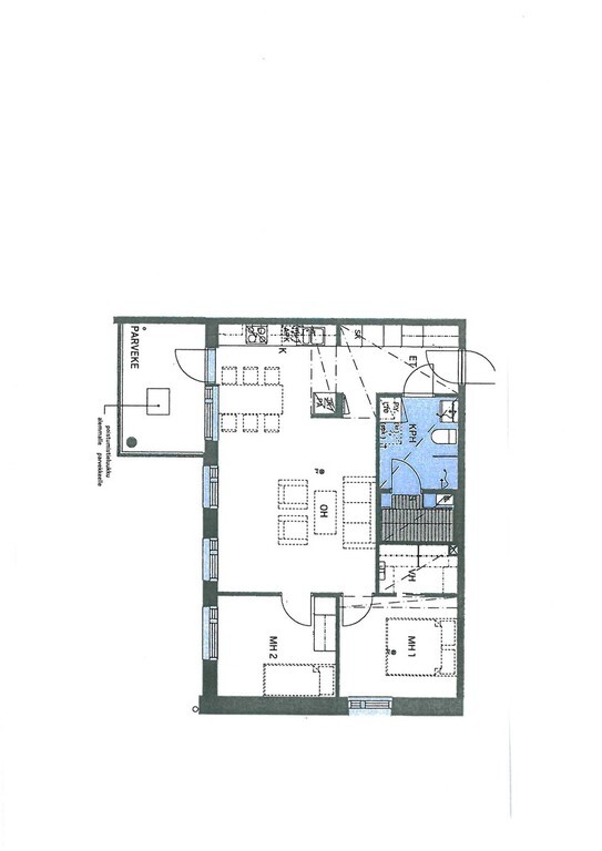
Kerrostalo 3h+k+s+lasitettu p.

Vesijärvenkatu 74 C, Ankkuri, Lahti

Vuokra
1 195 €

Koko
69.5 m²

Vuosi
2018

Vapautuu
01.12.2025

Vuokrataan valoisa ja hyvin hoidettu kolmio halutulla Ankkurin alueella, lähellä Vesijärven rantaa ja keskustan palveluja! Asunnossa on tilava olohuone, kaksi makuuhuonetta, keittiö sekä oma sauna. Lasitettu parveke tuo lisätilaa pitkälle syksyyn. Autohallipaikka vuokrattavissa 60 €/kk.

Keittiö on varustettu nykyaikaisilla kodinkoneilla (jääkaappi-pakastin, liesi/uuni, astianpesukone) ja kaappitilaa on runsaasti. Kylpyhuone on siisti ja tilava, pyykinpesukoneelle on liitäntä.

Ankkuri on viihtyisä ja merellinen kaupunginosa Vesijärven rannalla, vain noin 2 km Lahden keskustasta. Lähistöllä on loistavat ulkoilu- ja liikuntamahdollisuudet, uimaranta, venesatama sekä kauppa ja koulut kävelyetäisyydellä.

Järjestämme asuntoesittelyt asuntohakemusten perusteella, hakemus ei ole sitova. Hakemuksen voi jättää kotisivuiltamme www.asuntokanava.fi.

Luottotiedot tarkistetaan ennen vuokrasopimuksen solmimista. Uudella asukkaalla tulee olla sopimuksen alkaessa vuokrakohteeseen tehty vastuuosan sisältävä kotivakuutus sekä vaadittavat vakuudet.

Iloisin terveisin Asuntokanava
vuokraus.tampere@asuntokanava.fi
010 411 9910

Kaisa Kautola
Yhteystiedot
  • Asuntokanava, Tampere
  • 010 411 9910





    Kohdenumero20902517
    Sijainti
    • Ankkuri
    • Vesijärvenkatu 74
    • 15140
    • Lahti
    TyyppiKerrostalo
    Huoneistoselitelmä3h+k+s+lasitettu p.
    Asuinpinta-ala m²69.5 m²
    Yhteensä m²69.5 m²
    Pinta-alan perusteIsännöitsijäntodistuksen mukainen
    Kerros5
    Rakennusvuosi (päättynyt)2018
    Käyttöönottovuosi2018
    Vapautuu01.12.2025

    Kuukausivuokra1 195 €
    Vuokravakuus2kk rahavakuus
    Vesimaksu
    • 25
    • oma mittari
    Autopaikkamaksu60 € / kk
    Lisätietoja maksuistaVesi; vesimaksuennakko 25€/hlö/kk, tasataan vastaamaan kulutusta taloyhtiön kulloinkin perimän hinnan ja rytmin mukaisesti. Käyttösähkö; vuokralainen tekee oman sähkösopimuksen. Muu; Autohallipaikka (nro 9), 60 €/kk, maksetaan samalle tilille kuin huoneiston vuokra.

    Sauna
    • oma sauna
    ParvekeAsunnossa on parveke
    Parvekkeen kuvaus
    • Parveketyyppi: lasitettu, ulostyönnetty
    HissiTaloyhtiössä on hissi
    Asuntoon kuuluu
    • kaapeli-tv
    YleiskuntoHyvä
    EnergialuokkaC2013
    Lämmitysjärjestelmän kuvausKauko

    Asunnon tilat ja materiaalit
    • Pääasiallinen rakennusmateriaali: elementti, betoni
    Katto
    • Harjakatto
    • Konesaumattu peltikatto
    Keittiön kuvaus
    • Lattiamateriaalit: parketti
    • Seinämateriaalit: maalattu
    • Työtaso: puu
    • Varusteet: mikroaaltouuni
    • Liesi: integroitu liesi, erillisuuni
    • Jääkaappi ja pakastin: jääkaappi/pakastin
    Kylpyhuoneen kuvaus
    • Lattiamateriaalit: laatta
    • Seinämateriaalit: kaakeli
    • Varusteet: suihkuseinä, pesukoneliitäntä, lattialämmitys, wc-istuin, suihku, peilikaappi
    Saunan kuvaus
    • Lattiamateriaalit: laatta
    • Seinämateriaalit: puu
    Olohuoneen kuvaus
    • Lattiamateriaalit: parketti
    • Seinämateriaalit: maalattu
    Makuuhuoneiden kuvaus
    • Lukumäärä: 2
    • Lattiamateriaalit: parketti
    • Seinämateriaalit: maalattu

    Taloyhtiön nimiAsunto Oy Lahden Kartanon Portti
    Isännöitsijän yhteystiedotRetta Services Oy, Retta Isännöinti Lahti Päivi Haili Aleksanterinkatu 27 B 15140 LAHTI paivi.haili@retta.fi 010 228 0743 www.rettaisannointi.fi
    Taloyhtiöön kuuluu
    • urheiluvälinevarasto
    • väestönsuoja
    Taloyhtiössä muutaTaloyhtiölaajakaista DNA25M.
    EnergialuokkaC2013
    (Taloyhtiön) Rakennukseen tehdyt korjaukset ja remontit2019 Pyörävaraston näkösuoja kalvot 2021 Paineenalennusventtiili asennettu päävedentuloon, huippuimurit (asunnot) uusittu YIT 2021 Huippuimurit (asunnot) vaihdettu. YIT takuutyö. 2023 Kiinteistöautomaatio uusittu 2023 yllättävän vikaantumisen vuoksi
    Tiedossa olevat tulevat korjaukset/remontitParvekelasien tarkastus ja huolto, 2025 Ilmanvaihtokanavien nuohous (tehdään 5-10v välein), 2025
    Tontin pinta-ala4843 m²
    Tontin omistusOma