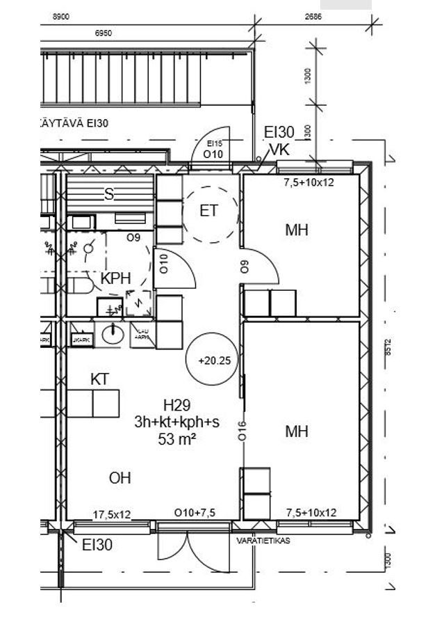
Luhtitalo 3h+avok+kph+s+p

Kalliomäenkatu 2 F, Haikkoo, Porvoo

Vuokra
860,00 €

Koko
53.0 m²

Vuosi
2016

Vapautuu
-

Kiinnostaisiko koti luonnon äärellä, mutta kuitenkin lähellä palveluita?

Asunto on myynnissä ja vuokrauksessa samanaikaisesti.

Kolmen huoneen luhtitalo koti. Pohjaratkaisu on käytännöllinen ja selkeä. Isot tilavat huoneet ja vaaleat pinnat luovat asuntoon avaruutta. Ikkunoita löytyy moneen suuntaan ja valo pääsee myös hyvin asuntoon. Tyylikäs ja kompakti avokeittiö on toimiva ja sieltä löytyy kaikki tarvittava. Kylpyhuone osittain laatoitettu ja siellä on pesukoneliitäntä, sekä oma sauna, jossa kelpaa rentoutua arjen kiireiden keskellä.

Rauhallinen ja vehreä Haikkoo sijaitsee Länsi-Porvoossa n. 5 km päässä Porvoon keskustasta. Alueelta löytyy loistavat ulkoilumahdollisuudet ja toimivat kulkuyhteydet keskustaan. Haikkoossa sijaitsee myös kuuluisa ja historiallinen Haikon kartano, joka tarjoaa loistavat puitteet rentoutumiselle ja hemmotteluun!

Asuntohakemuksen voi jättää kotisivuiltamme www.asuntokanava.fi. Luottotiedot tarkistetaan ennen vuokrasopimuksen solmimista. Uudella asukkaalla tulee olla sopimuksen alkaessa vuokrakohteeseen tehty vastuuosan sisältävä kotivakuutus sekä vaadittavat vakuudet.

Iloisin terveisin Asuntokanava
vuokraus.helsinki@asuntokanava.fi
010 526 3330

Marika Schaverin
Yhteystiedot
  • Asuntokanava
  • 010 526 3320





    Kohdenumero20816661
    Sijainti
    • Haikkoo
    • Kalliomäenkatu 2
    • 06400
    • Porvoo
    TyyppiLuhtitalo
    Huoneistoselitelmä3h+avok+kph+s+p
    Asuinpinta-ala m²53 m²
    Yhteensä m²53 m²
    Pinta-alan perusteYhtiöjärjestyksen mukainen, isännöitsijäntodistuksen mukainen
    Kerros2
    Kerroksia2
    Rakennusvuosi (päättynyt)2016
    Käyttöönottovuosi2016
    VapautuminenHeti

    Kuukausivuokra860,00 €
    Vuokravakuus2kk rahavakuus tai 1kk rahavakuus + 1-2 henkilön omavelkainen takaus
    Vesimaksu
    • 20
    • oma mittari
    Lisätietoja maksuistaVesi; mittarin mukaan, kulloinkin yhtiön perimän hinnan mukaan. Vesiennakko taloyhtiölle 20€/hlö/kk Käyttösähkö; vuokralaisen tulee solmia oma sähkösopimus. Lisäksi muut mahdolliset käyttömaksut taloyhtiölle kulloinkin voimassa olevan hinnaston mukaan. Mediamaksu 27,50 €/kk.

    Sauna
    • oma sauna
    ParvekeAsunnossa on parveke
    Parvekkeen kuvaus
    • Ilmansuunta: länsi
    • Parveketyyppi: ulostyönnetty
    Asuntoon kuuluu
    • kaapeli-tv
    YleiskuntoHyvä
    EnergialuokkaC2018
    Lämmitysjärjestelmän kuvausKauko

    Asunnon tilat ja materiaalit
    • Pääasiallinen rakennusmateriaali: puu, elementti
    Katto
    • Harjakatto
    • Pelti
    Keittiön kuvaus
    • Lattiamateriaalit: laminaatti
    • Seinämateriaalit: maalattu
    • Varusteet: astianpesukone
    • Liesi: keraaminen liesi
    • Jääkaappi ja pakastin: jääkaappi/pakastin
    Kylpyhuoneen kuvaus
    • Lattiamateriaalit: laatta
    • Seinämateriaalit: kaakeli
    • Varusteet: pesukoneliitäntä, lattialämmitys, wc-istuin, suihku, peilikaappi
    Saunan kuvaus
    • Lattiamateriaalit: laatta
    • Seinämateriaalit: kaakeli
    Olohuoneen kuvaus
    • Lattiamateriaalit: laminaatti
    • Seinämateriaalit: maalattu
    Makuuhuoneiden kuvaus
    • Lukumäärä: 2
    • Lattiamateriaalit: laminaatti
    • Seinämateriaalit: maalattu

    Taloyhtiön nimiAs Oy Haikoon Joutsenhanhi
    Isännöitsijän yhteystiedotIsännöintitoimisto Oiva Isännöinti Helsinki Oy Bulevardi 3 B, 6. kerros 00120 Helsinki Isännöitsijä Niina Minkkinen 010 411 6763
    Taloyhtiöön kuuluu
    • urheiluvälinevarasto
    Taloyhtiössä muutaIlmanvaihtojärjestelmä: Koneellinen
    EnergialuokkaC2018
    (Taloyhtiön) Rakennukseen tehdyt korjaukset ja remontit2022 rakennusaikaisten sähköasennusten korjaustyöt 2022 Huoneistokohtaisten sähkömittarien asennus 2022 Lämmöntalteenottolaitteiden kunnostus-ja säätötyöt 2022 Kulkuluukkujen rakentaminen alapohjan ryömintätiloihin 2022 Huoneistojen kylpyhuoneiden paneelikattoihin huoltoluukkujen asnnus iv-kojeille 2022 Ilmanvaihtohormien puhditus, suodattimien vaihto, ilmamäärien säätö, karmiventtiilien vaihto 2022 Huoneistokohtaisten jakotukkien venttiilien vaihto 2022 Huoneistokohtaiset sähkömittarit asennettu kevään 2022 aikana, jonka jälkeen asukkaat tehneet huoneistokohtaiset sähkösopimukset. Merkittävimmät korjaukset ja hankinnat ovat rakennusaikaisten sähköasennusten korjaustyöt, huoneistokohtaisten sähkömittarien asennukset, lämmöntalteenottolaitteistojen kunnostus- ja säätötyöt, huoneistojen kylpyhuoneiden paneelikattoihin huoltoluukkujen asennukset ilmanvaihto- ja lto-koneille, ilmanvaihtokanavien puhdistus- ja säätötyöt, suodattimien ja karmiventtiilien vaihto. Korjaustyöt on tehty perustajaosakkaiden maksamana 2023 tehdyt korjaukset: Kiinteistön korjaukset Vesivahinkokorjaukset Ikkunoiden ja ovien korjaukset LVI-järjestelmien korjaukset Sähkö-, tieto- ja kaasujärjestelmien korjaukset
    Tiedossa olevat tulevat korjaukset/remontit2026 10 vuotista tarkastus 2027 Julkisivujen huoltomaalaus
    Tontin pinta-ala4086 m²
    Tontin omistusOma