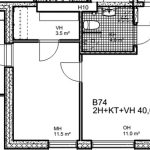
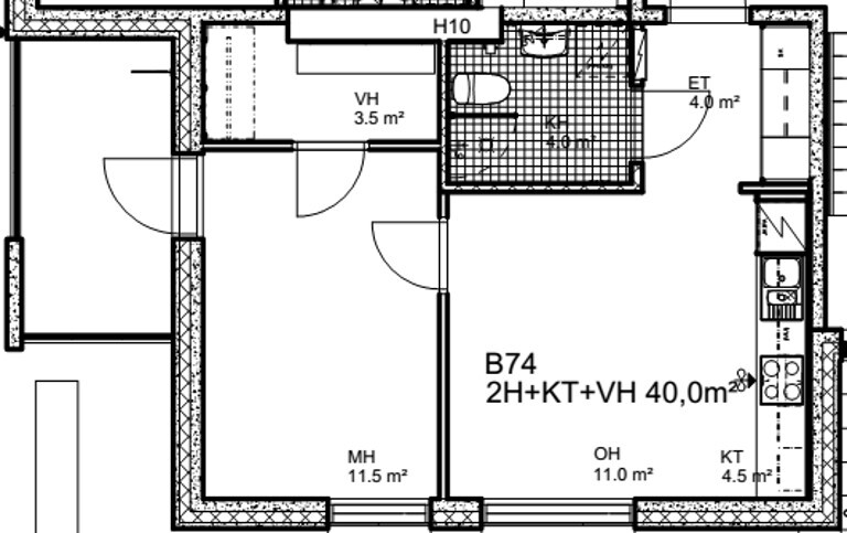
Kerrostalo 2h+kt+vh+p

Säästäjänkuja 1 B, Peltolammi, Tampere

Vuokra
700,00 €

Koko
40.0 m²

Vuosi
2019

Vapautuu
-

Tarjotaan vuokralle heti vapaa kaksio Peltolammilta, läheltä palveluita ja hyviä kulkuyhteyksiä! Asunnossa laadukkaat pintamateriaalit ja hyvä varustetaso. Runsaasti säilytystilaa eteisessä, sekä makuuhuoneen yhteydessä olevan vaatehuoneen ansiosta. Lasitettu parveke tuo lisätilaa pitkälle syksyyn

Tarvittavat palvelut ovat lähelläsi, sillä alle kilometrin etäisyydellä on K-Market ja Apteekki. Lisäksi Lidl, Prisma ja Ikea ovat kivenheiton päässä. Läheltä löytyvät myös kirjasto, koulu ja päiväkoti. Tampereen keskustaan pääsee bussilla hujauksessa.

Järjestämme asuntoesittelyt asuntohakemusten perusteella, hakemus ei ole sitova. Hakemuksen voi jättää kotisivuiltamme www.asuntokanava.fi.

Luottotiedot tarkistetaan ennen vuokrasopimuksen solmimista. Uudella asukkaalla tulee olla sopimuksen alkaessa vuokrakohteeseen tehty vastuuosan sisältävä kotivakuutus sekä vaadittavat vakuudet.

Iloisin terveisin Asuntokanava
vuokraus.tampere@asuntokanava.fi
010 411 9910

Kaisa Kautola
Yhteystiedot
  • Asuntokanava, Tampere
  • 010 411 9910





    Kohdenumero20958873
    Sijainti
    • Peltolammi
    • Säästäjänkuja 1
    • 33840
    • Tampere
    TyyppiKerrostalo
    Huoneistoselitelmä2h+kt+vh+p
    Asuinpinta-ala m²40 m²
    Yhteensä m²40 m²
    Pinta-alan perusteYhtiöjärjestyksen mukainen
    Kerros6
    Kerroksia7
    Rakennusvuosi (päättynyt)2019
    Käyttöönottovuosi2019
    VapautuminenHeti

    Kuukausivuokra700,00 €
    Vuokravakuus2kk rahavakuus
    Vesimaksu
    • 20
    • oma mittari
    Lisätietoja maksuistaVesi; vesimaksuennakko 20€/hlö/kk, tasaus taloyhtiön kulloinkin perimän hinnan ja rytmin mukaisesti. Käyttösähkö; vuokralainen tekee oman sähkösopimuksen.

    Sauna
    • taloyhtiössä sauna
    ParvekeAsunnossa on parveke
    Parvekkeen kuvaus
    • Parveketyyppi: lasitettu, ulostyönnetty
    HissiTaloyhtiössä on hissi
    Asuntoon kuuluu
    • kaapeli-tv
    YleiskuntoHyvä
    EnergialuokkaC2013

    Keittiön kuvaus
    • Lattiamateriaalit: vinyyli
    • Seinämateriaalit: kaakeli, maalattu
    • Työtaso: laminaatti
    • Varusteet: liesituuletin, astianpesukone
    • Liesi: keraaminen liesi, erillisuuni
    • Jääkaappi ja pakastin: jääkaappi/pakastin
    Kylpyhuoneen kuvaus
    • Lattiamateriaalit: laatta
    • Seinämateriaalit: kaakeli
    • Varusteet: suihkuseinä, pesukoneliitäntä, lattialämmitys, wc-istuin, suihku, peilikaappi
    Saunan kuvaus
    • Lattiamateriaalit: laatta
    • Seinämateriaalit: kaakeli, puu
    Olohuoneen kuvaus
    • Lattiamateriaalit: vinyyli
    • Seinämateriaalit: maalattu
    Makuuhuoneiden kuvaus
    • Lattiamateriaalit: vinyyli
    • Seinämateriaalit: maalattu

    Taloyhtiöön kuuluu
    • urheiluvälinevarasto
    • väestönsuoja
    EnergialuokkaC2013