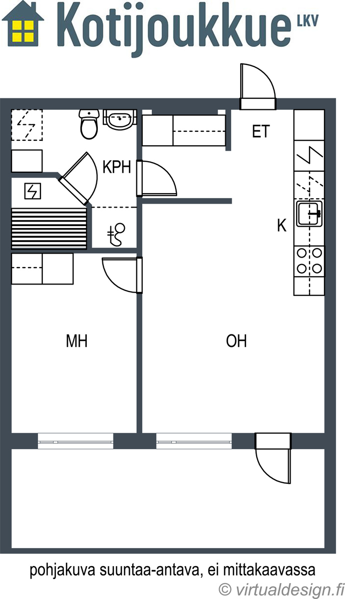
Kerrostalo 2h+kt+s, lasitettu p
Jouppilantie 13 B, Jouppi, Seinäjoki
Vuokra
690,00 €
Koko
41.5 m²
Vuosi
2019
Vapautuu
01.05.2026
Vuokrattavissa kaksio tehokkaalla pohjatarkaisulla Jouppilankartanon ylimmästä (8/8) kerroksesta! Upeat näköalat Joupiskalle päin tilavalta lasitetulta parvekkeelta. Asunnossa on tarkoin mietitty tehokas pohjaratkaisu. Keskusta palveluineen on kävelymatkan päässä. Vuokraan sisältyy laajakaistayhteys.
Jouppi on suosittu asuinalue, josta on lyhyt matka niin keskustaan kuin Ideaparkiin. Alueelta löytyy monipuoliset ulkoilureitit sekä Joupiskan talviurheilukeskus laskettelurinteineen. Myös Seinäjoen ammattikorkeakoulu on kävelyetäisyyden päässä. Lähiruokakauppa n. 900 metrin päässä.
Asuntohakemuksen voi jättää kotisivuiltamme www.asuntokanava.fi. Luottotiedot tarkistetaan ennen vuokrasopimuksen solmimista. Uudella asukkaalla tulee olla sopimuksen alkaessa vuokrakohteeseen tehty vastuuosan sisältävä kotivakuutus sekä vaadittavat vakuudet.
Iloisin terveisin Asuntokanava
vuokraus.seinajoki@asuntokanava.fi
010 526 3320
|
|
|---|---|
| Yhteystiedot |
|
| Kohdenumero | 21530851 |
|---|---|
| Sijainti |
|
| Tyyppi | Kerrostalo |
| Huoneistoselitelmä | 2h+kt+s, lasitettu p |
| Asuinpinta-ala m² | 41.5 m² |
| Yhteensä m² | 41.5 m² |
| Pinta-alan peruste | Yhtiöjärjestyksen mukainen, isännöitsijäntodistuksen mukainen |
| Kerros | 8 |
| Kerroksia | 8 |
| Rakennusvuosi (päättynyt) | 2019 |
| Käyttöönottovuosi | 2019 |
| Vapautuu | 01.05.2026 |
| Kuukausivuokra | 690,00 € |
|---|---|
| Vuokravakuus | 2kk vuokraa vastaava talletus vuokrasopimuksessa osoitetulle tilille |
| Vesimaksu |
|
| Lisätietoja maksuista | Vesi; mittarin mukaan, kulloinkin yhtiön perimän hinnan mukaan. Käyttösähkö; vuokralaisen tulee solmia oma sähkösopimus. Lisäksi muut mahdolliset käyttömaksut taloyhtiölle kulloinkin voimassa olevan hinnaston mukaan. Veden kuutiohinnat: Kylmä vesi: 5,10 €/m³ Lämmin vesi: 11,00 €/m³ Autohallipaikkavuokra 80 €/kk, Autopistokepaikka 50 €/kk. Autopaikat vuokrataan taloyhtiöltä jonotusperiaatteella. |
| Sauna |
|
|---|---|
| Parveke | Asunnossa on parveke |
| Parvekkeen kuvaus |
|
| Hissi | Taloyhtiössä on hissi |
| Yleiskunto | Hyvä |
| Lisätietoa kunnosta | Taloyhtiö on valmistunut 2019. |
| Energialuokka | C2013 |
| Lämmitysjärjestelmän kuvaus | Kauko |
| Asunnon tilat ja materiaalit |
|
|---|---|
| Katto |
|
| Keittiön kuvaus |
|
| Kylpyhuoneen kuvaus |
|
| Saunan kuvaus |
|
| Olohuoneen kuvaus |
|
| Makuuhuoneiden kuvaus |
|
| Taloyhtiön nimi | Asunto Oy Seinäjoen Jouppilankartano |
|---|---|
| Isännöitsijän yhteystiedot | Oiva Isännöinti Seinäjoki Oy Seinäjoen toimipiste PL30, 60101 Seinäjoki 010 755 6210 isannointi.seinajoki@oi.fi Krista Toivola 010 755 6219 krista.toivola@oi.fi |
| Taloyhtiöön kuuluu |
|
| Taloyhtiössä muuta | Ilmanvaihtojärjestelmä: Koneellinen LTO. Yhteinen laajakaista: DNA taloyhtiösopimus, perusnopeus 25M. Asukkaan tulee rekisteröidä yhteys omiin nimiinsä DNA:n sivuilla. |
| Energialuokka | C2013 |
| (Taloyhtiön) Rakennukseen tehdyt korjaukset ja remontit | Suoritetut muutos- ja kunnossapitotyöt: 2020 - Ulko-oven automatisointi |
| Tiedossa olevat tulevat korjaukset/remontit | Merkittävät kunnossapitotarpeet seuraavan viiden vuoden aikana: Käsitelty yhtiökokouksessa 29.4.2025 Ilmanvaihtokanavien puhdistus sekä ilmamäärien mittaus ja säätö 10-vuotistarkastus, kuntoarvio, PTS laadinta Sähköverkkoon kytkettyjen palovaroittimien vaihto |
| Tontin pinta-ala | 869 m² |
| Tontin omistus | Oma |