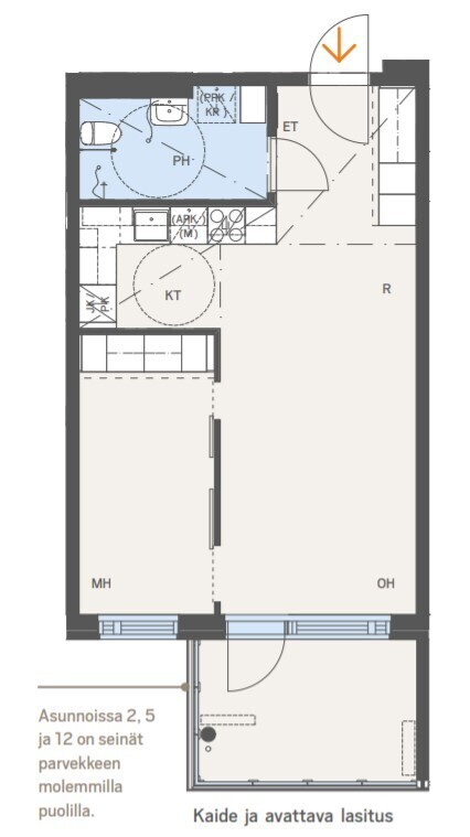
Kerrostalo 2h + kt + kph + parveke
Elmontie 9 A, Asola, Vantaa
Vuokra
763,00 €
Koko
45.5 m²
Vuosi
2018
Vapautuu
01.01.2026
Avara parvekkeellinen koti palveluiden äärellä Vantaan Asolassa!
Tässä 8. kerroksen asunnossa on selkeä ja toimiva pohja, joka mahdollistaa asunnon helpon sisustamisen mieleiseksi. Tyylikkäässä avokeittiössä on tilaa työskennellä ja sieltä löytyy kaikki tarvittava. Olohuone ja keittiö ovat avointa yhteistä tilaa. Olohuoneen kautta kulku lasitetulle parvekkeelle, josta on upeat näkymät. Kaappitilaa löytyy kivasti niin eteisestä kuin makuuhuoneestakin. Kylpyhuoneesta löytyy pesukoneliitäntä.
Vantaan Asolassa lähelläsi on kauppa kivenheiton päässä, sekä hyvät kulkuyhteydet niin omalla autolla kuin julkisillakin.
Järjestämme asuntoesittelyt asuntohakemusten perusteella, hakemus ei ole sitova. Hakemuksen voi jättää kotisivuiltamme www.asuntokanava.fi. Luottotiedot tarkistetaan ennen vuokrasopimuksen solmimista. Uudella asukkaalla tulee olla sopimuksen alkaessa vuokrakohteeseen tehty vastuuosan sisältävä kotivakuutus sekä vaadittavat vakuudet.
Iloisin terveisin Asuntokanava
vuokraus.helsinki@asuntokanava.fi
010 526 3330
|
|
|---|---|
| Yhteystiedot |
|
| Kohdenumero | 21758932 |
|---|---|
| Sijainti |
|
| Tyyppi | Kerrostalo |
| Huoneistoselitelmä | 2h + kt + kph + parveke |
| Asuinpinta-ala m² | 45.5 m² |
| Yhteensä m² | 45.5 m² |
| Pinta-alan peruste | Yhtiöjärjestyksen mukainen, isännöitsijäntodistuksen mukainen |
| Kerros | 8 |
| Kerroksia | 8 |
| Rakennusvuosi (päättynyt) | 2018 |
| Käyttöönottovuosi | 2018 |
| Vapautuu | 01.01.2026 |
| Kuukausivuokra | 763,00 € |
|---|---|
| Vuokravakuus | 1kk rahavakuus |
| Vesimaksu |
|
| Lisätietoja maksuista | Vesi; mittarin mukaan, kulloinkin yhtiön perimän hinnan mukaan. Vesiennakko taloyhtiölle 20€/hlö/kk Käyttösähkö; vuokralaisen tulee solmia oma sähkösopimus. Lisäksi muut mahdolliset käyttömaksut taloyhtiölle kulloinkin voimassa olevan hinnaston mukaan. Saunamaksu 20€/kk |
| Sauna |
|
|---|---|
| Parveke | Asunnossa on parveke |
| Parvekkeen kuvaus |
|
| Hissi | Taloyhtiössä on hissi |
| Asuntoon kuuluu |
|
| Yleiskunto | Hyvä |
| Energialuokka | C2013 |
| Lämmitysjärjestelmän kuvaus | Kauko |
| Asunnon tilat ja materiaalit |
|
|---|---|
| Katto |
|
| Keittiön kuvaus |
|
| Kylpyhuoneen kuvaus |
|
| Olohuoneen kuvaus |
|
| Makuuhuoneiden kuvaus |
|
| Taloyhtiön nimi | Asunto Oy Vantaan Laventeli |
|---|---|
| Isännöitsijän yhteystiedot | Matti Räty Iskurit Oy Pohjoinen Hesperiankatu 15 A 00260 Helsinki 020 730 1331 |
| Taloyhtiöön kuuluu |
|
| Taloyhtiössä muuta | Yhtiössä on yhteinen Elisan taloyhtiölaajakaista, jonka maksiminopeus on 25M Ilmanvaihtojärjestelmä Koneellinen tulo/poisto Antennityyppi DVB-C (digitaalinen kaapeli) |
| Energialuokka | C2013 |
| (Taloyhtiön) Rakennukseen tehdyt korjaukset ja remontit | Huomattavat suoritetut korjaukset ja perusparannukset: 2024 Vesikatteen pienkorjaukset 2024 Ilmanvaihtokanavien nuohous (Cervi Oy) 2023 Vaihdettu asuntojen suihkusekoittajat rakentajan 10-vuotisvastuina (YIT) |
| Tiedossa olevat tulevat korjaukset/remontit | KUNNOSSAPITOTARVE YHTIÖKOKOUSTA SEURAAVIEN VIIDEN VUODEN AIKANA: Ulkovaraston huoltomaalaus 2026 Kiinteistön kuntotarkastus 2027 Parvekelasitusten kuntotarkastus 2027 Vesikatteen kuntotarkastus 2028 Palovaroitinten uusiminen 2028 Putkiston kuntotutkimus ja kuvaus 2027 Taloautomaatiojärjestelmän uusinta 2025 |
| Tontin pinta-ala | 1760 m² |
| Tontin omistus | Vuokrattu |
| Palvelut | Rekolan ja Koivukylän palvelut, päiväkoti, ylä- ja ala-aste, ruokakaupat, erikoistavaraliikkeet ja automarket lähellä. |
|---|---|
| Liikenneyhteydet | Rekolan asema n. 400 m |