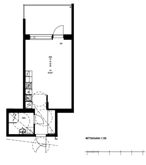
Kerrostalo 1h, kt, alkovi, lasitettu p.

Vääränkalliontie 1 A, Harjunsalo, Kangasala

Vuokra
565,00 €

Koko
35.0 m²

Vuosi
2018

Vapautuu
-

Vuokrataan tilava yksiö Kangasalan Harjunsalosta! Asunnossa on käytetty neliöt tehokkaasti ja iso lasitettu parveke tuo lisätilaa pitkälle syksyyn. Laadukkaat vaaleat pintamateriaalit ja sälekaihtimet valmiiksi asennettu. Nettiyhteys (100M) sisältyy vuokraan.

Harjunsalo on viihtyisä ja rauhallinen asuinalue Kangasalan länsiosassa, Tampereen kupeessa. Alue tunnetaan erityisesti vehreästä ympäristöstään, hyvistään ulkoilumahdollisuuksistaan ja perheystävällisestä tunnelmastaan. Läheltä löytyvät upeat harjumaisemat, metsät ja järvet.

Alueelta on sujuvat liikenneyhteydet Tampereen ja Kangasalan keskustaan – niin omalla autolla kuin julkisilla. Lähikauppa ja päiväkoti ovat kävelymatkan päässä, ja muut palvelut löytyvät helposti esimerkiksi Kangasalan keskustasta tai Lentolan kauppakeskuksesta.

Järjestämme asuntoesittelyt asuntohakemusten perusteella, hakemus ei ole sitova. Hakemuksen voi jättää kotisivuiltamme www.asuntokanava.fi.

Luottotiedot tarkistetaan ennen vuokrasopimuksen solmimista. Uudella asukkaalla tulee olla sopimuksen alkaessa vuokrakohteeseen tehty vastuuosan sisältävä kotivakuutus sekä vaadittavat vakuudet.

Iloisin terveisin Asuntokanava
vuokraus.tampere@asuntokanava.fi
010 411 9910

Kaisa Kautola
Yhteystiedot
  • Asuntokanava, Tampere
  • 010 411 9910





    Kohdenumero20857705
    Sijainti
    • Harjunsalo
    • Vääränkalliontie 1
    • 36200
    • Kangasala
    TyyppiKerrostalo
    Huoneistoselitelmä1h, kt, alkovi, lasitettu p.
    Asuinpinta-ala m²35 m²
    Yhteensä m²35 m²
    Pinta-alan perusteIsännöitsijäntodistuksen mukainen
    Kerros2
    Kerroksia6
    Rakennusvuosi (päättynyt)2018
    Käyttöönottovuosi2018
    VapautuminenHeti

    Kuukausivuokra565,00 €
    Vuokravakuus2kk rahavakuus
    Vesimaksu
    • 20
    • oma mittari
    Lisätietoja maksuistaVesi; vesimaksuennakko 20€/hlö/kk, tasataan vastaamaan kulutusta taloyhtiön kulloinkin perimän hinnan ja rytmin mukaisesti. Käyttösähkö; vuokralainen tekee oman sähkösopimuksen.

    Sauna
    • taloyhtiössä sauna
    ParvekeAsunnossa on parveke
    Parvekkeen kuvaus
    • Ilmansuunta: etelä
    • Parveketyyppi: lasitettu, ulostyönnetty
    HissiTaloyhtiössä on hissi
    Asuntoon kuuluu
    • kaapeli-tv
    YleiskuntoHyvä
    EnergialuokkaC2013
    Lämmitysjärjestelmän kuvausKauko

    Asunnon tilat ja materiaalit
    • Pääasiallinen rakennusmateriaali: betoni
    Katto
    • Harjakatto
    • Huopakate
    Keittiön kuvaus
    • Lattiamateriaalit: laminaatti
    • Seinämateriaalit: kaakeli, maalattu
    • Työtaso: laminaatti
    • Varusteet: liesituuletin, astianpesukone
    • Liesi: keraaminen liesi, erillisuuni
    • Jääkaappi ja pakastin: jääkaappi/pakastin
    Kylpyhuoneen kuvaus
    • Lattiamateriaalit: laatta
    • Seinämateriaalit: kaakeli
    • Varusteet: suihkukaappi, pesukoneliitäntä, lattialämmitys, wc-istuin, suihku, peilikaappi
    Olohuoneen kuvaus
    • Lattiamateriaalit: laminaatti
    • Seinämateriaalit: maalattu

    Taloyhtiön nimiAsunto Oy Kangasalan Vääränkalliontie 1
    Isännöitsijän yhteystiedotIsännöitsijätoimisto Pirkanmaan Laatuisännöinti Oy Tampellan Esplanadi 10 33100 Tampere Isännöitsijä Tommi Haila 03 357 5225
    Taloyhtiöön kuuluu
    • urheiluvälinevarasto
    • kellarikomero
    • väestönsuoja
    Taloyhtiössä muutaKerhohuone ja sauna seitsemännessä kerroksessa. Yhtiön laajakaista: DNA 100M/100M. Ilmanvaihtojärjestelmä: Koneellinen tulo- ja poisto (LTO).
    EnergialuokkaC2013
    (Taloyhtiön) Rakennukseen tehdyt korjaukset ja remontit2018 Asennettu saunaosastolle ylimääräinen vesipiste 2018 Väliaita istutettu 2019 Saunaosaston varusteiden hankinta 2019 Saunaosaston oveen ajastettava sähkölukko 2021 LTO-pumppu vaihdettu 2022 Saunatilan kaakelien korjaus 2023 Sähköautojen latauskartoitus
    Tiedossa olevat tulevat korjaukset/remontit2026-27 10-vuotis tarkastus 2028 VSS tarkistus ja tiiveyskoe 2028 IV-puhdistus ja ilmamäärien mittaus
    Tontin omistusVuokrattu